Container homes are becoming an increasingly interesting living alternative. The creative adaptation and reuse of containers are by no means a new concept, but have found recent revival with the growing of the Micro-Living concept. Containers are limited in size, but do offer a great basic grid to work from, especially when combining multiple containers and possible introducing other conventional building materials.

“Concept rendering of 5 bedroom container home – container and storefront material combination”
S.E.A. has been working on container concepts for multiple years, bringing a working concept to South Florida under the strict Florida Building Code. The FBC does make containers a challenge for true residential use, which is a key reason why local examples are thus far reduced to storage, seasonal uses and temporary mobile mini offices.

“Site view showing container and concrete roof connector”
Understanding especially the high velocity hurricane zone impact with design pressures of 175 mph any structure in the South Florida market is build strong. Containers innately hold to these pressures, as long as no alteration to eh exterior structural skin is make. Once opening for windows are introduced, reinforcing is required, increasing the construction cost drastically. Proper anchoring is another challenge that container home projects face in the sub-tropical climate to comply with code, as is compliance with the energy code.

“Ground floor plan – carport, living areas, bedrooms. Mixed material stair and connector”
S.E.A. has identified solutions to these and other challenges and we look forward to adding container homes to our growing residential profile.

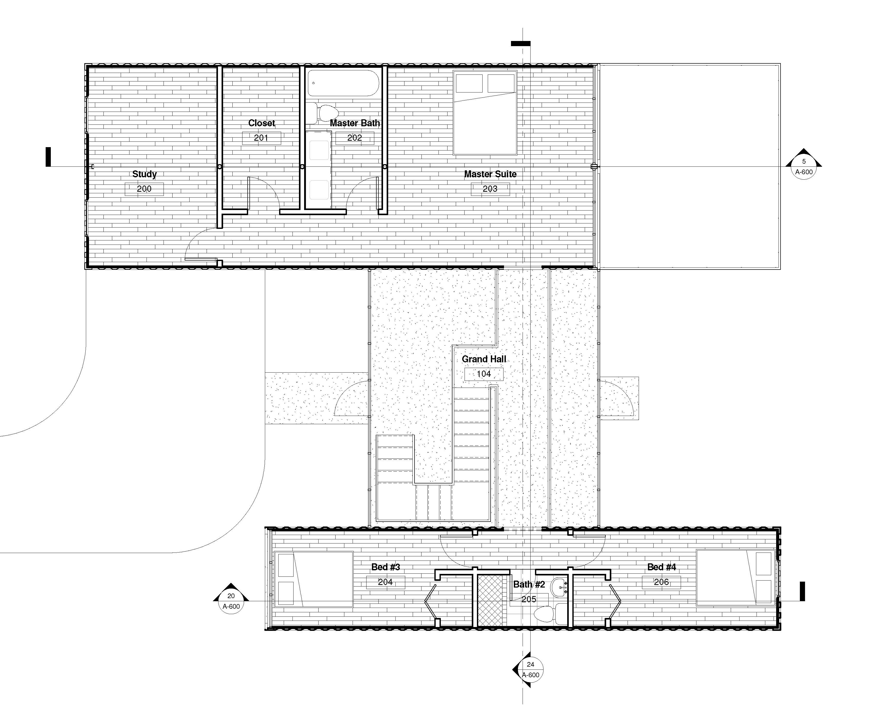
“2nd Floor – master suite and bedrooms”

Leave a comment