
The Moorings Residence is a wonderful remodel of a 1960’s gem settled in the Moorings community within the neighborhood of Coconut Grove. The original single-story residence boasted with wood details and featured a structural roof made from 2x’s. Supported by only a few bearing walls, the house literally invites the outside in with removed floors and enclosed patios.

The renovation focused on bringing more light into the spaces and on controlling the border between inside and out while connecting the building to its site. Clean and clearly defined lines as well as the Florida Modern architectural style were the guiding direction from the owner.

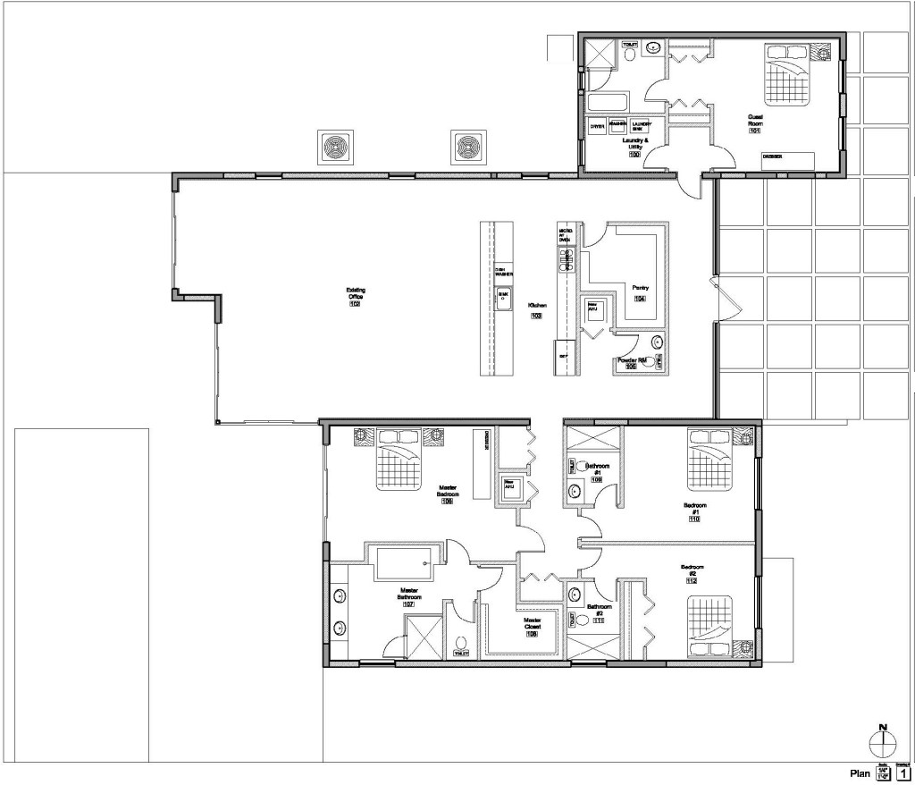
S.E.A. incorporated many sustainable features, such as LED lighting, non-toxic cabinetry and finishes, a terrazzo floor, and updated energy efficiency for the entire building envelope (doors, windows, walls, and roof).

With a strong focus on durability, there is no drywall in this project. All interior walls are constructed with 4” masonry units and stucco finish, and the ceiling is finished with fiberglass board. The kitchen features a solid poured-in-place concrete counter and waterfall edge with stainless steel cabinetry and glass shelves.

Concrete counters were also utilized in the bathrooms. The master features a sunken shower as well as a soaking tub. All fixtures are dual flush water sense rated.
The house has improved energy coating in all glazing, a reflective exterior paint, and increased rigid insulation in the roof. Air conditioning equipment was selected with increased SEER to further improve the energy performance. The house is PV-ready with installed piping and mounting brackets for a future system.

Sebastian Eilert Architecture is a sustainable architecture and Interior Design firm with its main office in Miami, Florida. The boutique firm specializes in the quality design and delivery of for custom new residential homes and light hospitality projects. Sebastian Eilert Architecture has significant experience in the design of Miami-Dade County criteria compliance, design for aging in place, durable and minimal maintenance design, as well as waterfront and off-grid projects.
Project highlights include the first USGBC LEED certified project for Miami Dade County, the Lower Garden Building in Pinecrest Gardens for the Village of Pinecrest, a durable focused residence in the Moorings neighborhood in Coconut Grove (no drywall or wood used in the project), a Contemporary style Coral Gables waterfront home with an original canal access boat house, and a major renovation and addition of a 1912 Coconut Grove Mansion (received a Sustainable Design Award from DHT).
German born principal, Sebastian Eilert AIA, LEED AP+ has been awarded, among others, the Historic Preservation, Sustainable Design Architect of the Year, and Young Architect of the Year award from the AIA Miami and honorary Emerging Green Builder from the University of Miami. Mr. Eilert was adjunct professor at the University of Miami and a frequent team member of the AIA National SDAT program.
Precision, quality, and dedication to timely completion distinguish Sebastian Eilert Architecture from its competitors… the German Way. Find more projects, and contact Sebastian Eilert Architecture to start your own project, on http://www.SebastianEilert.com


Leave a comment